Nouveaux cabinets disponibles

Centre Médical & Paramédical MEDIPARK

Livraison estimée : été 2026

Cabinets de consultation prêts à l'emploi — intégrez une équipe pluridisciplinaire, au cœur d'un pôle de santé.

Adresse : 41 avenue Ledru Rollin, 94170 Le-Perreux-Sur-Marne
Email : contact@medipark.fr
Façade du centre MEDIPARK

Les locaux

Des bureaux médicaux de 14 à 18 m², prêts à l’emploi

Le centre MEDIPARK propose des bureaux médicaux et paramédicaux neufs, pensés pour l’exercice libéral au Perreux-sur-Marne : surfaces de 14 à 18 m², locaux conformes aux normes ERP et accessibilité PMR, au sein d’un pôle de santé pluridisciplinaire.

  • Bureaux individuels de 14 à 18 m²
  • Accès à la salle d’attente, aux sanitaires et aux parties communes
  • Locaux neufs, adaptés aux médecins et professions paramédicales
  • Possibilité de place de parking en sous-sol

Loyer indicatif mensuel

de 1 150 € à 1 450 € / mois

charges incluses, selon la surface du bureau et les options retenues.

Aperçu des locaux

Bureaux médicaux lumineux, insonorisés, intégrés à un pôle de santé structuré au Perreux-sur-Marne.

Surfaces

14–18 m²

Loyer indicatif

1 150–1 450 €

charges incluses

Accessibilité

ERP, PMR, circulation patients adaptée.

Environnement

Quartier résidentiel, patientèle de proximité.

Kinésithérapie

Postes disponibles : 2
Cabinet de kinésithérapie

Cabinet de kinésithérapie

Salle dédiée à la rééducation avec plateau technique. Idéal orthopédie / rachis / respi.

postes

2 disponibles

Pour candidater à la kinésithérapie, utilisez le formulaire de candidature et précisez "Kinésithérapie" dans votre message.

Pourquoi s'installer chez nous ?

Locaux optimisés

Cabinets lumineux (≈12–20 m²), insonorisés, climatisation réversible, prêts à l’emploi.

Normes & accessibilité

Conformité ERP, accessibilité PMR, sécurité.

Synergies pro

Équipe pluridisciplinaire, recommandations croisées, visibilité locale et patientèle qualifiée.

Flexibilité

Formules temps partiel / plein temps, contrats évolutifs, accès 24/7 selon besoins.

Services inclus

Internet fibre, électricité, eau, chauffage, climatisation, ménage des communs, salle d’attente, salle de repos avec kitchenette, signalétique.

Emplacement

Adresse visible, centre-ville, commerces et transports à proximité.

L'équipe en place

Kinésithérapie

Déby UZAN

Kinésithérapeute D.E.

Nicolas MEGNIEN

Kinésithérapeute D.E.

Mélina STREIFF

Kinésithérapeute D.E.

Dan BENMOYAL

Kinésithérapeute D.E.

Julien FARRET

Kinésithérapeute D.E.

Gynécologie

Dr C.

Gynécologue

Dr H.

Gynécologue

Ophtalmologie

Dr T.

Ophtalmologue

Tarifs & conditions

Cabinet 14–15 m²

1350€ TTC / mois

  • Cabinet équipé, prêt à l’emploi
  • Internet, ménage des communs, eau, électricité, chauffage, climatisation, signalétique
  • Accès salle d’attente & salle de repos avec kitchenette
Demander une visite

Cabinet 18 m²

1450€ TTC / mois

  • Espace plus grand
  • Inclus : électricité, eau, chauffage, climatisation, internet, parties communes
Demander une visite

Parking (sous-sol sécurisé)

100€ TTC / mois

  • Place non boxée, accès badge
Réserver

Kinésithérapie — modalité spécifique

L’occupation d’un poste de kinésithérapie s’effectue sur la base d’une rétrocession d’honoraires : 20% de rétrocession sur le chiffre d’affaires (incluant les services et charges courantes).

Candidater côté Kiné

*Tarifs indicatifs susceptibles d’évoluer selon surface, options et durée d’engagement.

Le projet MEDIPARK

Vision & aménagements

Création d’un pôle médical et paramédical moderne, modulable, conforme aux normes ERP/PMR, avec cabinets de consultation, espace kinésithérapie, salle d’attente, locaux techniques et stationnement en sous-sol.

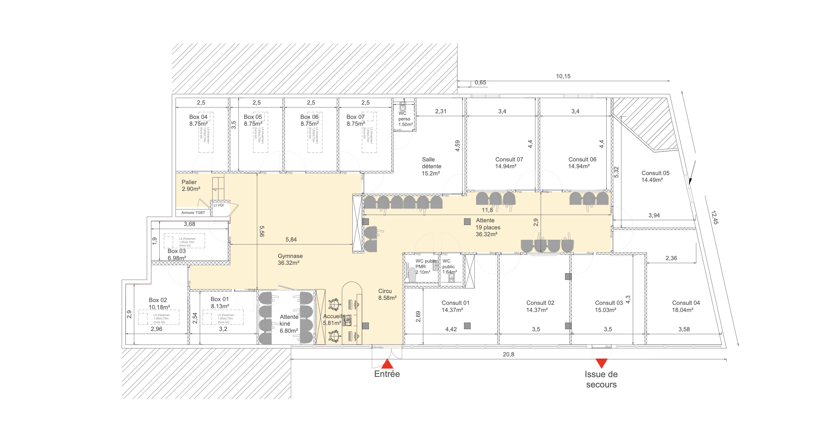
Plan du projet Medipark
Plan niveau – aperçu

Phasage prévisionnel

  1. Phase 1 — Études & autorisations
    Architecture, ERP/PMR, choix techniques.
  2. Phase 2 — Travaux intérieurs
    Cloisons, fluides, électricité, CVC, finitions.
  3. Phase 3 — Mobilier & équipements
    Cabinets, signalétique, tests et mises en service.
  4. Phase 4 — Ouverture
    Mise en place des équipes, démarrage activité.

Livraison estimée : été 2026 (date indicative, sujette à ajustements).

Être tenu·e informé·e

Localisation du centre

41 avenue Ledru Rollin, 94170 Le-Perreux-sur-Marne

Informations de contact

  • Email : contact@medipark.fr
  • Adresse : 41 avenue Ledru Rollin, 94170 Le-Perreux-sur-Marne

Checklist d'installation

  • Attestation RCP & n° RPPS/Adeli
  • Pièce d'identité & statuts (si société)
  • RIB & dépôt de garantie

Mentions légales & RGPD

Responsable du traitement : Centre Médical & Paramédical MEDIPARK.

Finalités : gestion des candidatures, demandes d’information et de visite.

Base légale : intérêt légitime (recrutement de praticiens) et consentement (formulaire).

Données traitées : identité, coordonnées, spécialité, message, informations de navigation basiques.

Durée de conservation : 12 mois après le dernier contact, sauf obligation légale différente.

Destinataires : équipe MEDIPARK et sous-traitants techniques (hébergement, outils d’automatisation).

Vos droits : accès, rectification, effacement, opposition, limitation, portabilité.

Contact RGPD : contact@medipark.fr

Hébergeur : o2switch – 222-224 Bd Gustave Flaubert, 63000 Clermont-Ferrand.